Завершено камеральні роботи з інвентаризації зелених насаджень університетського містечка

Відповідно до наказу ректора №973 від 7 листопада 2020 року «Щодо проведення робіт з інвентаризації зелених насаджень» було визначено важливе завдання – провести інвентаризацію зелених насаджень університетського містечка. Це дозволить мати повну та достовірну інформацію щодо наявності садово-паркових об’єктів на території університету. Силами викладачів ННІ лісового і садово-паркового господарства та факультету землевпорядкування виконано завершальний (камеральний) етап запланованої роботи. Впродовж 2021 року співробітниками зазначених підрозділів, було проведено роботи на всіх об’єктах щодо збору польового дослідного матеріалу, а саме: топографічне знімання території базового закладу з використанням безпілотника DJI Inspire 1 та DJI Matrice 100, які наявні в геодезичному парку факультету землевпорядкування та виконано вимірювання ключових таксаційних показників дерев та чагарників, а також оцінено стан газонів і квітників.


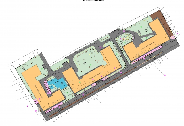
Не зважаючи на корективи, які вносить війна в наше життя, у 2022 році робота була продовжена та виконано значний осяг камеральних робіт. Виконання робіт передбачало створення мережі розпізнавальних знаків, для яких визначаються планові координати. Використовуючи комплект GNSS-приймачі ElNav і70 та ElNav М3 із SMART планшетом та широкомасштабними функціями в режимі Real Time Kinematic було закоординовано понад чотири десятки рівномірно розміщених опознаків. Отримані знімки місцевості опрацьовані з використанням програмного засобу Agisoft PhotoScan. Також за допомогою ліцензійного програмного комплексу Digitals, попередньо здійснивши прив’язку і векторизацію ортофотоплану, створена картографічна основа в масштабі 1:500 на півтора десятки земельних ділянок.


У поточному році також було уточнено низку таксаційних показників, які збиралися під час польових робіт, а за допомогою геоінформаційної системи Quantum GIS нанесено на підготовлені топографічні карти внутрішню ситуацію зелених насаджень на території університету.


До виконання поставлених задач також було залучено співробітники кошторисно-договірного відділу для визначення балансової вартості об’єктів інвентаризації. За результатами проведеної роботи на всі об’єкти було розроблено Щоденники польових робіт із детальним переліком наявних об’єктів інвентаризації та Паспорти цих об’єктів з визначенням загальної кошторисної вартості.
Проведена робота надасть можливість отримати повну та достовірну інформацію про наявні зелені насадження на території університету, їх санітарний стан та загальну балансову вартість, що є важливим при веденні господарської діяльності університету.

Олександр Бала,

доцент кафедри таксації лісу та лісового менеджменту
Олександр Шевченко,

заступник декана факультету землевпорядкування